Location appartement à AGEN (47000)

Référence : GES00880005-45

/ mois
660

AGEN

63 m²

3 pièces

Description du bien

Exclusivité

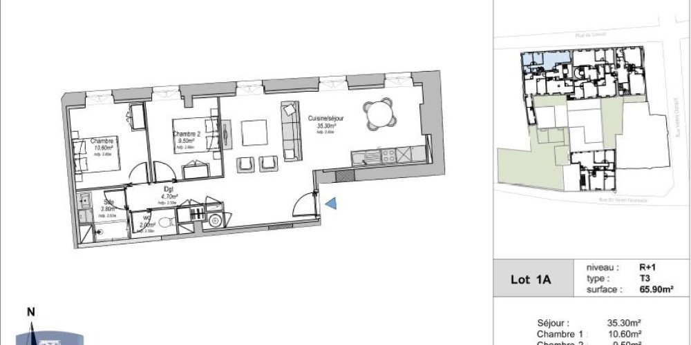
À LOUER ! Découvrez cet appartement neuf T3 situé à Agen, dans un quartier dynamique et agréable. Avec une superficie de 65 m², cet espace de vie moderne est idéal pour les familles ou les jeunes professionnels à la recherche de confort et de praticité.Dès votre entrée, vous serez séduit par la luminosité et l'agencement optimisé de cet appartement. Il se compose de deux chambres spacieuses, parfaites pour se reposer après une longue journée. La salle d'eau, moderne et fonctionnelle, vous offre tout le nécessaire pour votre quotidien. Le séjour, convivial et accueillant, est l'endroit parfait pour partager des moments en famille ou entre amis.La cuisine est entièrement équipée, vous permettant de préparer de délicieux repas sans souci. Le chauffage individuel par radiateur électrique vous garantit un confort optimal tout au long de l'année. Situé au premier étage d'une résidence bien entretenue de 3 étages, cet appartement bénéficie d'un cadre de vie agréable. Bien que sans ascenseur, la montée des escaliers sera un bon exercice pour garder la forme !À proximité, vous trouverez tous les commerces nécessaires à votre quotidien : plusieurs supermarchés, boulangeries et pharmacies sont accessibles en moins de 500 mètres. Les établissements scolaires, tels que le Collège Adèle de Trenquelléon, sont également à deux pas, ce qui est un atout majeur pour les familles.Ne manquez pas cette opportunité de vivre dans un appartement moderne, au cœur d'Agen, avec toutes les commodités à portée de main. Contactez-nous au 05.53.77.26.41 dès maintenant pour organiser une visite et laissez-vous charmer par ce bien d'exception !. Le bien est soumis au statut de la copropriété. Loyer de 660,00 euros par mois charges comprises dont 50,00 euros par mois de provision pour charges (soumis à la régularisation annuelle). Soit avec Assurance Habitation et Assistance* ( 22.40 euros ) : 682,40 euros. Les honoraires charge locataire sont de 694,65 euros ( soit 11,00 euros/m² ) dont 189,45 euros pour état des lieux ( soit 3,00 euros/m² ). Vous pouvez consulter les barèmes d'honoraires à l'adresse suivante : https://www.citya.com/agences-immobilieres/agen-47000/187#bareme-location Montant estimé des dépenses annuelles d'énergie pour un usage standard : entre 830 et 1 180 euros. Prix moyens des énergies indexés en 2023. Les informations sur les risques auxquels ce bien est exposé sont disponibles sur le site Géorisques : https://www.georisques.gouv.fr. *Service facultatif. Contribution annuelle "attentats" non comprise. Voir conditions en agence.

Détails du bien

  • Mandat : exclusif
  • Code postal : 47000
  • Commune : AGEN
  • Charges : 100 €/mois
  • État général : Habitable
  • Surface habitable : 63 m2
  • Nombre de pièces : 3
  • Nombre de chambres : 2
  • Cuisine : équipée
  • Chauffage : Radiateur
  • Meublé : non

Ce bien est proposé par

CITYA PORTE DU PIN

CITYA PORTE DU PIN

25, Place du 14 Juillet
47000 AGEN

05 53 68 24 45
ducasse.contact@citya.com
https://www.citya.com

Nous contacter

Diagnostic de performances énergétiques

Diagnostic de performance énergétique

161 KWhEP/m2/an

Gaz à Effet de Serre

5 Kgéq/CO2/an

Montant estimé des dépenses annuelles d'énergie pour un usage standard : non communiqué.
Date de référence des prix de l'énergie utilisés pour établir cette estimation : non communiqué.

CES BIENS PEUVENT VOUS INTÉRESSER